Ficha
Piso en venta en Oliva, Valencia (Platja de Oliva, Oliva)
REF. 2767

321 m2

2 m2

3

2

1

1
venta: 335.000 €
Descripción

🏡 Exclusiva villa de diseño en la prestigiosa urbanización Oliva Nova — a tan solo 200 m de la playa de arena blanca


En uno de los enclaves más codiciados de la Costa Blanca se encuentra esta elegante residencia que combina a la perfección arquitectura contemporánea, luminosidad y confort mediterráneo.


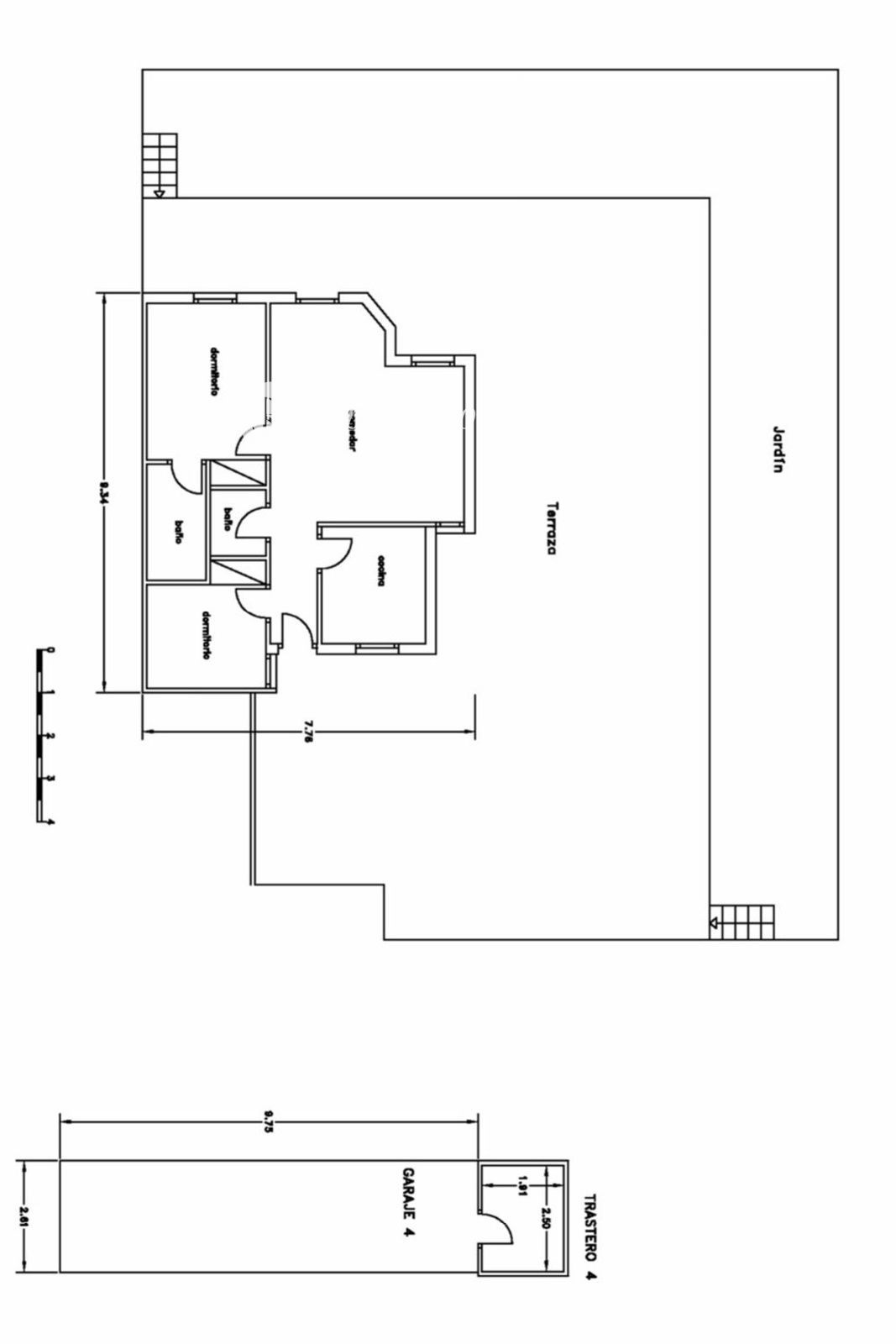
La propiedad ofrece 87 m² de vivienda principal, rodeada por 150 m² de terraza y un jardín privado de 110 m², creando un entorno perfecto para disfrutar del sol y la privacidad durante todo el año.


Su interior, totalmente exterior y bañado por luz natural, cuenta con un amplio salón-comedor con cocina abierta, que se funde con el exterior a través de grandes ventanales con salida directa a la terraza.

Dispone de un dormitorio principal en suite y dos dormitorios dobles adicionales, todos diseñados con materiales de primera calidad y acabados de estilo moderno y refinado.


✨ Detalles que marcan la diferencia:

 • Zonas comunes exclusivas con piscina y jardines cuidados

 • Plaza de parking doble cerrada

 • Trastero de 4 m²

 • Vivienda muy luminosa, acogedora y lista para entrar a vivir


Un oasis de serenidad a escasos metros del mar, donde cada espacio ha sido pensado para ofrecer el máximo bienestar y elegancia.

Una propiedad ideal tanto como residencia principal como para disfrutar de estancias de lujo frente al Mediterráneo.


📞 Solicita más información o una visita privada y descubre esta joya en Oliva Nova

Características
Precio Venta 335.000 €
Precio/m² 1.044
Gastos de comunidad 85 €
I.B.I. 400 €
Año de construcción 2004
Construidos 321 m2
Útiles 320 m2
Dormitorios 3
Baños 2
Cocina Amueblada
Terraza
Altura/Planta 1
Estado Reformado
Ascensor
Aire acondicionado
Piscina comunitaria
Garaje
Zonas comunes
Calificación Energética (D) VER
Luz
Agua
Escalas de eficiencia


-
-

Tu agente
Cecile Sandrine
Contáctanos

Si deseas más información sobre esta propiedad, por favor, rellena el formulario.

 Sí, he leído y/o acepto las Condiciones de uso y la Política de privacidad
Inmuebles similares:
 
Consultar
Ref. 2918  65 m2  2  2
Piso en venta en Alicante/Alacant, con 65 m2, 2 habitaciones y 2 baños, Piscina, Ascensor y Aire acondicionado.
 
285.000 €
Ref. 2579  82 m2  2  1
⚠️ Uso limitado a fines turísticos: este apartamento no puede destinarse como residencia habitual.